2024

Dompet Dhuafa - COWORKING

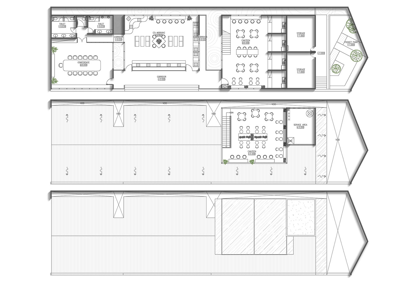
Bangunan yang mengakomodasi fungsi coworking, conference, dan kantin yang dibangun dengan memanfaatkan struktur yang sudah ada. Berlokasi di Warung Jati Barat, Jakarta Selatan. Bangunan bersifat semi permanen sehingga material yang digunakan adalah material yang mudah dibongkar pasang. Bertema industrialis dengan sentuhan kayu serta bukaan yang banyak untuk menghemat penggunaan cahaya buatan saat siang hari.

Adaptasi struktur bangunan Coworking, Conference, dan Kantin eksisting, dengan sifat semi permanen

Bangunan yang mengakomodasi fungsi coworking, conference, dan kantin yang dibangun dengan memanfaatkan struktur yang sudah ada. Berlokasi di Warung Jati Barat, Jakarta Selatan. Bangunan bersifat semi permanen sehingga material yang digunakan adalah material yang mudah dibongkar pasang. Bertema industrialis dengan sentuhan kayu serta bukaan yang banyak untuk menghemat penggunaan cahaya buatan saat siang hari.
Bangunan yang mengakomodasi fungsi coworking, conference, dan kantin yang dibangun dengan memanfaatkan struktur yang sudah ada. Berlokasi di Warung Jati Barat, Jakarta Selatan. Bangunan bersifat semi permanen sehingga material yang digunakan adalah material yang mudah dibongkar pasang. Bertema industrialis dengan sentuhan kayu serta bukaan yang banyak untuk menghemat penggunaan cahaya buatan saat siang hari.